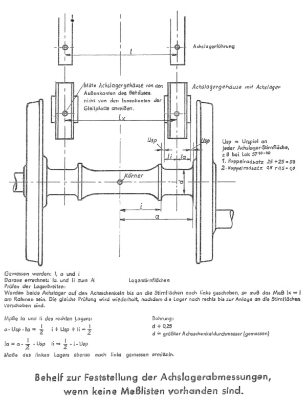
-- 48 --